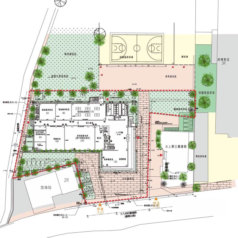
嘉義縣水上鄉全民運動館新建工程
類 別 : 鄉村區(特定目的事業用地)
座 落 位 置 : 嘉義縣水上鄉柳林段188-2地號等1筆
工 程 名 稱 : 嘉義縣水上鄉全民運動館新建工程
起 造 人 : 嘉義縣政府
外 飾 材 料 :塗料、丁掛磚、鋁包版、玻璃欄杆
建 築 構 造 : RC混凝土
基 地 面 積: 4133.57m² (1250.40坪)
建 築 面 積: 4155.38m² (1226.75坪)
總樓地板面積: 7299.68m² (2208.15坪)
層 數 :地上2層
設 計 時 間 :2020年
完 工 時 間 :施工中
.png)
.jpg)
.jpg)
.jpg)
.jpg)
.jpg)
.jpg)
.jpg)
.jpg)






